Comprar propiedades en SALADO VILLAGE

Superficie construida
 - 
Precio, €
 - 
Villa de 3 dormitorios en SALADO VILLAGE, №. 5

Villa de 3 dormitorios en SALADO VILLAGE, №. 5

Los Alcázares
3
Dormitorios
2
Baños
106 m2
Superficie construida
Fecha de finalización IV trimestre de, 2026
NLA PROMOTORES
Villa de 3 dormitorios en SALADO VILLAGE, №. 6

Villa de 3 dormitorios en SALADO VILLAGE, №. 6

Los Alcázares
3
Dormitorios
2
Baños
106 m2
Superficie construida
Fecha de finalización IV trimestre de, 2026
NLA PROMOTORES

Acerca del proyecto SALADO VILLAGE

Ubicación
Los Alcázares
Estado del proyecto
Obra nueva
Distancia al mar
1000 m
Obra nueva con promotora
NLA PROMOTORES
Tipo de propiedad
Desarrollo

Detalles del proyecto

Cerca de la playa
Cerca de centros comerciales
Cerca del campo de golf
Gran ubicación
Cerca de restaurantes
Vista a la piscina
Vista al parque/jardín
Balcón
Aire acondicionado
Cocina totalmente equipada
Electrodomésticos de cocina
Piscina privada
Cocina americana
Garaje
Jardín
Solarium opcional
Mostrar todas

Ubicación

Cerca de la playa
Cerca de centros comerciales
Cerca del campo de golf
Gran ubicación
Cerca de restaurantes
Vista a la piscina
Vista al parque/jardín

Características

Balcón
Aire acondicionado
Cocina totalmente equipada
Electrodomésticos de cocina
Piscina privada
Cocina americana

Instalaciones interiores

Garaje

Instalaciones exteriores

Jardín
Solarium opcional
Mostrar todas
Visitas online de las propiedades de SALADO VILLAGE

Visitas online de las propiedades de SALADO VILLAGE

Las mejores propiedades para inversión disponibles para usted ahora mismo en la pantalla de su dispositivo.

Fiabilidad, simplicidad y alta rentabilidad!

Diseños SALADO VILLAGE

  • 2D
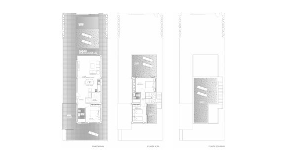
    Villa floor plan, 3 bedrooms in SALADO VILLAGE No. 4 (2D)
    Superficie construida 106m2
    Baños 2
    Dormitorios 3
    Precio mín. € 465 000
  • 2D
    Villa floor plan, 3 bedrooms in SALADO VILLAGE No. 3 (2D)
    Superficie construida 106m2
    Baños 2
    Dormitorios 3
    Precio mín. € 445 000
Diseños  1 de 2

Comparación de parámetros y precios en SALADO VILLAGE

Planos de pisos Dormitorios Tipo de propiedad Superficie construida Precio
Villa floor plan, 3 bedrooms in SALADO VILLAGE No. 4
Villa floor plan, 3 bedrooms in SALADO VILLAGE No. 4
Villa floor plan, 3 bedrooms in SALADO VILLAGE No. 3
Villa floor plan, 3 bedrooms in SALADO VILLAGE No. 3
Villa floor plan, 3 bedrooms in SALADO VILLAGE No. 4
Villa floor plan, 3 bedrooms in SALADO VILLAGE No. 4
3 dormitorios € 465 000
Villa floor plan, 3 bedrooms in SALADO VILLAGE No. 4
Villa floor plan, 3 bedrooms in SALADO VILLAGE No. 4
Dormitorios 3 dormitorios
Planos de pisos Villa
Superficie construida 106 m2
Precio € 465 000
Villa floor plan, 3 bedrooms in SALADO VILLAGE No. 3
Villa floor plan, 3 bedrooms in SALADO VILLAGE No. 3
3 dormitorios € 445 000
Villa floor plan, 3 bedrooms in SALADO VILLAGE No. 3
Villa floor plan, 3 bedrooms in SALADO VILLAGE No. 3
Dormitorios 3 dormitorios
Planos de pisos Villa
Superficie construida 106 m2
Precio € 445 000

Consulta con un experto

Le ayudaremos con su elección en cualquier momento. Estamos en línea 24/7. Recibirá información completa sobre la propiedad que le interesa y las opciones de distribución disponibles.

Mapa

Contacto con nosotros

Yan Vaynruch

Nuestro equipo le ayudará a elegir la propiedad ideal en SALADO VILLAGE

Yan Vaynruch

General director, CEO

¡Su solicitud ha sido enviada exitosamente!