Acheter propriétés à SALADO VILLAGE

Espace de vie
 - 
Prix, €
 - 
3 chambres Villa en SALADO VILLAGE No. 5

3 chambres Villa en SALADO VILLAGE No. 5

Los Alcazares
3
Chambres
2
Salles de bain
106 m2
Espace de vie
Date d'achèvement IV quartier, 2026
NLA PROMOTORES
3 chambres Villa en SALADO VILLAGE No. 6

3 chambres Villa en SALADO VILLAGE No. 6

Los Alcazares
3
Chambres
2
Salles de bain
106 m2
Espace de vie
Date d'achèvement IV quartier, 2026
NLA PROMOTORES

À propos du projet SALADO VILLAGE

Emplacement
Los Alcazares
État du projet
Nouveau projet
Distance de la mer
1000 m
Promoteur
NLA PROMOTORES
Type de propriété
Développement

Détails du projet

Près de la plage
Près des centres commerciaux
Près du terrain de golf
Emplacement idéal
Près des restaurants
Vue sur la piscine
Vue sur le parc /sur le jardin
Balcon
Climatiseurs
Cuisine entièrement équipée
Appareils ménagers
Piscine privée
Cuisine à plan libre
Garage
Jardin
Solarium optionnel
Afficher tout

Emplacement

Près de la plage
Près des centres commerciaux
Près du terrain de golf
Emplacement idéal
Près des restaurants
Vue sur la piscine
Vue sur le parc /sur le jardin

Caractéristiques

Balcon
Climatiseurs
Cuisine entièrement équipée
Appareils ménagers
Piscine privée
Cuisine à plan libre

Installations intérieures

Garage

Caractéristiques extérieures

Jardin
Solarium optionnel
Afficher tout
Visionnage en ligne à SALADO VILLAGE

Visionnage en ligne à SALADO VILLAGE

Des biens immobiliers d'investissement idéaux sont disponibles dès maintenant sur l'écran de votre appareil..

Fiabilité, simplicité et rentabilité élevée!

Dispositions SALADO VILLAGE

  • 2D
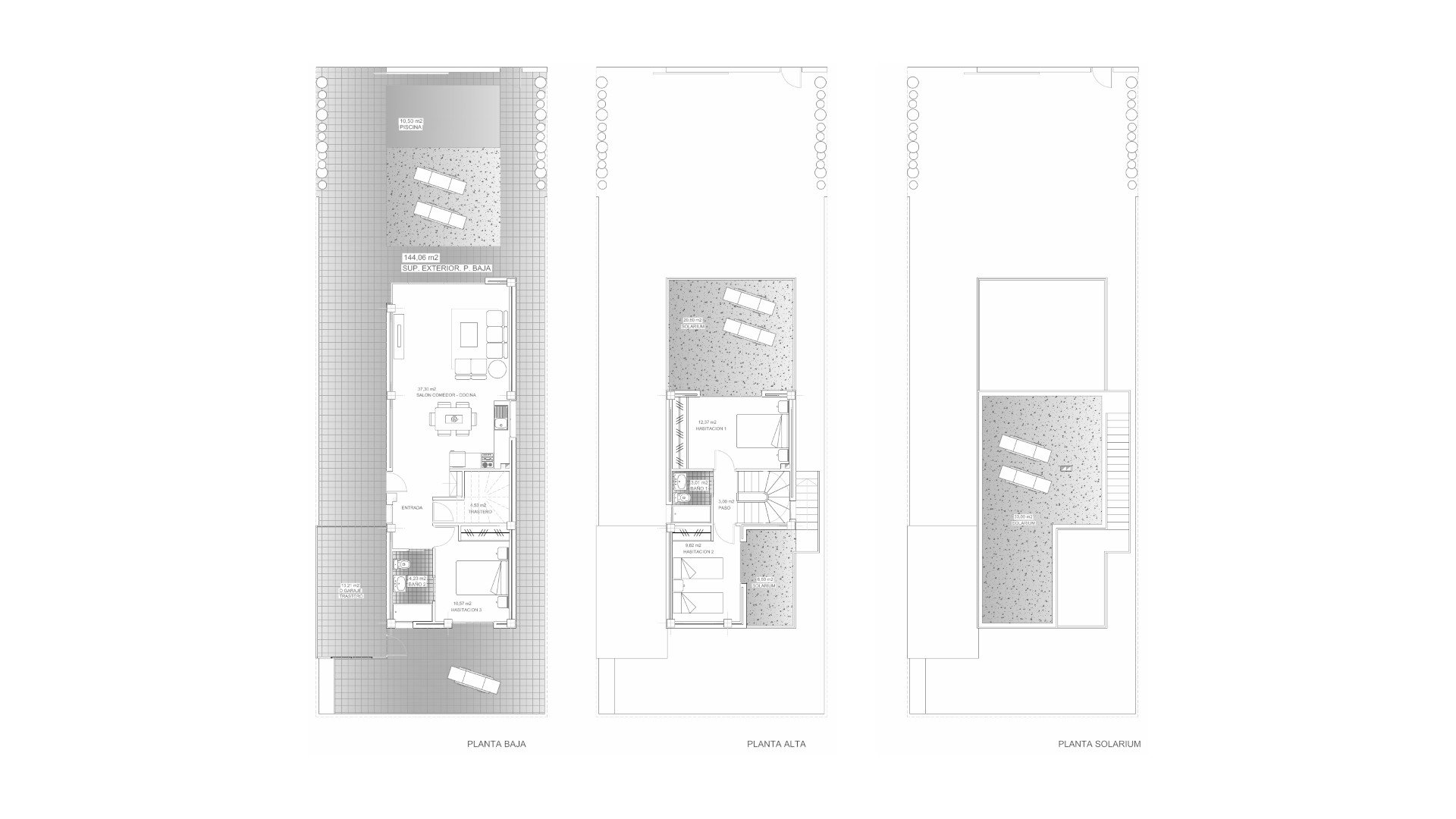
    Villa floor plan, 3 bedrooms in SALADO VILLAGE No. 4 (2D)
    Surface 106m2
    Salles de bain 2
    Chambres 3
    Min. prix € 465 000
  • 2D
    Villa floor plan, 3 bedrooms in SALADO VILLAGE No. 3 (2D)
    Surface 106m2
    Salles de bain 2
    Chambres 3
    Min. prix € 445 000
Mise en page  1 / 2

Comparaison des paramètres et des prix à SALADO VILLAGE

Plans Chambres Type de propriété Espace de vie Prix
Villa floor plan, 3 bedrooms in SALADO VILLAGE No. 4
Villa floor plan, 3 bedrooms in SALADO VILLAGE No. 4
Villa floor plan, 3 bedrooms in SALADO VILLAGE No. 3
Villa floor plan, 3 bedrooms in SALADO VILLAGE No. 3
Villa floor plan, 3 bedrooms in SALADO VILLAGE No. 4
Villa floor plan, 3 bedrooms in SALADO VILLAGE No. 4
3 chambres € 465 000
Villa floor plan, 3 bedrooms in SALADO VILLAGE No. 4
Villa floor plan, 3 bedrooms in SALADO VILLAGE No. 4
Chambres 3 chambres
Plans Villa
Espace de vie 106 m2
Prix € 465 000
Villa floor plan, 3 bedrooms in SALADO VILLAGE No. 3
Villa floor plan, 3 bedrooms in SALADO VILLAGE No. 3
3 chambres € 445 000
Villa floor plan, 3 bedrooms in SALADO VILLAGE No. 3
Villa floor plan, 3 bedrooms in SALADO VILLAGE No. 3
Chambres 3 chambres
Plans Villa
Espace de vie 106 m2
Prix € 445 000

Consultation avec un expert

Nous vous aiderons dans votre choix à tout moment, nous sommes en ligne 24/7. Vous recevrez des informations complètes sur la propriété qui vous intéresse et les options d'aménagement disponibles.

Carte

Contactez-nous

Yan Vaynruch

Notre équipe vous aidera à choisir la propriété idéale à SALADO VILLAGE

Yan Vaynruch

Directeur général

Votre demande a été envoyée avec succès!